
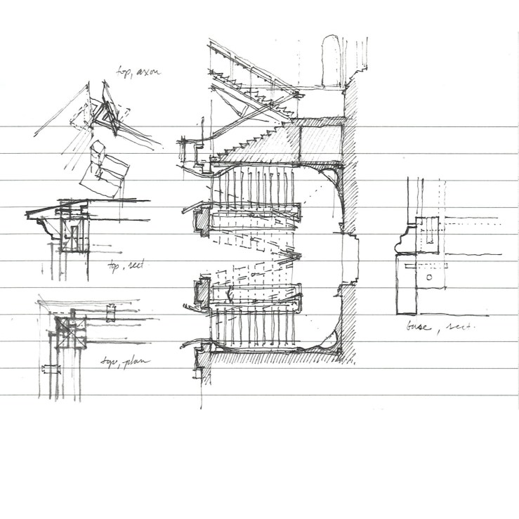
One square, one circular. The square has a radial winder stair inside (but cut as a square), while the circle has a square stair inside, with habitable spaces inside of that inner square. This particular example is a rift on a project by Oswald Mathias Ungers, where circular and square towers are set alongside one another (and of course, I can’t track it down, though I know it’s in the Electa monograph. . .).


















