
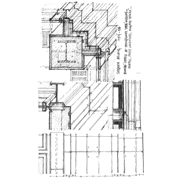
Today’s post takes its impetus from a number of geometric games I’ve been playing with myself recently – the staircase moves from a circle to a square in plan, the tower moves from a square to a circle in elevation, the staircase moves from a rectangle to a circle as it moves from floor to floor. Programmatically, it is a take on Krier’s belvederes, which crop up again and again in his oeuvre (and again, and again, and again, and again, and again. . . ).






























Two outer walls are traditionally detailed, while the porticos between them take on an abstract formalist language. The cubic volume of the villa proper is more Mies-ian, and is topped with large shingled hip roof (with the 