
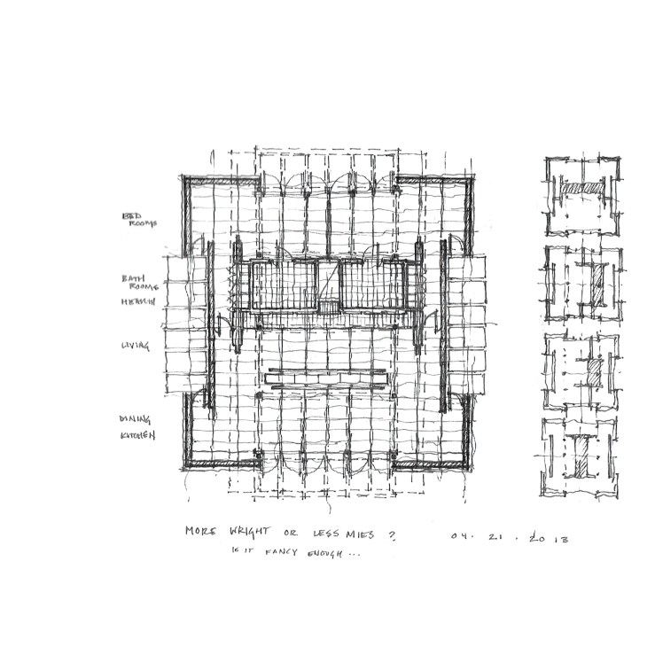
Today’s post is a continuation of the previous week’s. Here, I’ve blown-up the kitchen proper, which like my grandparents’ kitchen that inspired it, has a large central island. Where theirs was square, though, I’ve rendered it circular, in homage to Sir Edwin Lutyens’ great subterranean kitchen at Castle Drogo. Similarly to Lutyens’, I’ve topped it with a great circular skylight as well, to bring ample daylight into the workspace. For a stroke of my own interest, I’ve placed a small breakfast nook to the south, which takes cues from Frank Lloyd Wright’s many inglenooks that dotted his earliest works.























