
Combining the first and second interpretations of this theme, here’s a take with both the flanking skylights (a la Soane) and the semi-circular colonnade, with two large columns on center to flesh things out.





In typical fashion, a synthetic plan was due: taking the vault from yesterday’s post (my take on Lutyen’s take on Soane’s take on antiquity), I slapped a half-round colonnades on either end covered each in a large conical shingled roof. The fun part is the cornice of the cubic vaulted form, which does some funky things to accommodate modules, structure, and walls, shown in the bottom drawing (wormseye axonometric detail). The lantern is a direct quote of the lighthouse lantern at Old Point Loma in San Diego.



I got a new book on Sir Edwin Lutyens, so obviously I’ve been obsessing over his details, here presenting a take on his epic kitchen at Castle Drogo (itself a quote of Sir John Soane’s soaring occuli at the Bank of England). Lutyens is truly fascinating, especially in his seemingly infinite possibility to breathe a sense of whimsy into the often staid classical Orders. My representation is axial, with two rounded skylit bays on either end of the main axis, an asymmetry that reads in the roof eaves as well as the elevations. The main door is marked with a Mannerist curved pediment, hinting at the curved vaults hidden within. The section below cuts through both axes.



This is a collection of market types, with four ancient Greek stoae on the ground level, double stairs up to the second floor market halls, skylit, and further to the commodities trading levels within the tower. An atrium spans between the four levels. An enlarged plan of the entry lobby finishes the drawing set.




I had wanted to draw this while we were on site, but the monk who was giving us a tour was moving at a brisk rate. This is the entrance pavilion to Aalto’s Library at Mount Angel, as previously featured here, and is worth featuring because of the inherent classicism of it all – strictly modular, rigidly symmetrical (minus that one angled wall on the right), with a well-coordinated ceiling plan, brick floor patterning, column placement, and door/storefront alignment. For the über-modernist Aalto, this is proof that his early education in Nordic Classicism never truly left. Details below.


Three buildings I saw while driving cross town = three quick elevation studies: A symmetrical hip-roofed house with a long continuous masonry wall that continues to form a low wall on the rear yard; A series of openings on a flat stucco wall, centered on one large square picture window (the jack arches are my own); A square light well lined with industrial sash windows, and a clapboard volume beneath.

It started with a roof plan – a hip roofed monitor. Then a cone. Then a pyramid skylight. In plan, the monitor sits above a square living room, the cone above a semi-circular bedroom, with cores flanking a tall dining room, topped with a skylight.



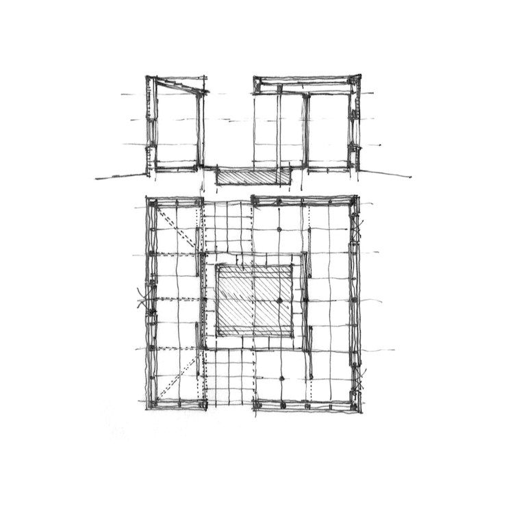
A square with brick exterior walls, with a square pool in the center. One half of the enclosure is fleshed out on the interior with modern details, while the other has a classical impluvium roof, but with the same sliding glass doors as the modern half. An unfolded wormseye (upview) axonometric is below.


Maybe not what most people consider ‘capital-A’ architecture, but interesting nonetheless – interior walls and their treatment. These four options are studies for my own house, with coved ceilings, picture rail, wall base, chair rail, and wainscot sticking. The two top options explore large-scale masonry patterns a la Michael Graves, while the two bottom options divide the wall into sections, from many stripes to more distinct panels.

Taking its form from some barn structures I passed on my trip to Oregon, this house has two opposing axes, one large gable, and a hip-ish roof. A spiral stair gently curves out on the side opposite the main entry. Classical details sit happily next to vernacular forms. Further formal explorations below

